![]() |
| Vista da rua Formosa - Vale do Anhangabaú |
![]() |
| Fachada incorporado do antigo Cine Cairu e, na esquina, o Edifício de Giancarlo Palanti |
Uma articulação
meio labiríntica, meio informe, logo, uma forma flagrantemente urbana.
Concebido como
um complemento ao Teatro Municipal, a Praça das Artes incorpora o conservatório
de música, mas expande exponencialmente o programa ao incluir escola de música,
escola de dança e centro de documentação musical, bem como as sedes dos corpos artísticos
do teatro (orquestra, quartetos de cordas e corais).
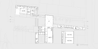
O complexo da
Praça das Artes tem na sua implantação um dos pontos chave do projeto. Trata-se
de uma ocupação do miolo de uma quadra, formado pela conjunção de vários lotes
que se aglutinam e que tem saída para três das quatro ruas que a cercam (Rua
Formosa que ladeia o Vale do Anhagabaú, a Avenida São João e a Rua Conselheiro
Crispiniano). Trata-se de um lugar absolutamente central, tanto pela sua
localização histórica onde praticamente a cidade de São Paulo surgiu, como por
estar voltado para uma das áreas públicas mais conhecidas da cidade: o vale do
Anhanbaú, entre os viadutos do Chá e Santa Ifigénia. Além do Teatro Municipal,
com a praça Ramos de Azevedo coligada, a área concentra uma série de
edificações destacadas: a sede da prefeitura, o edifício Conde de Prates de
Giancarlo Palanti, o edifício dos Correios, o edifício Mirante do Vale de
Zarzur e Kogan, o edifício Martinelli, o Mosteiro de São Bento, o edifício do
BANESPA.
Apesar de sua situação
impar, o local encontrava-se degradado, como de fato, todo o entorno. Lidar com
essa espacialidade negativa, irregular, cercada de sobras e acumulações
desregradas e comprimidas, enfim, encarar essa condensação de dificuldades buscando
incorporá-las ao projeto revelou-se a principal decisão do projeto.
Contra a
tendência de subdivisão tradicional do lote urbano em porções individuais
regulares, gerando construções coladas umas as outras, com frente para a via
pública e sobras irregulares aos fundos – modelo por excelência da quadra
fechada – o projeto transforma aquilo que comumente seria residual em princípio
ativo do espaço, assim, desafia o padrão histórico do desenho das cidades que
relaciona arquitetura e malha urbana. Ocupar as entranhas da quadra para daí
facultar o acesso e o usufruto público, eis o princípio definidor do partido.
Esgueirando-se pelas sobras negativas dos terrenos, o complexo aparece,
desaparece e reaparece para a rua, contorna, envolve e percorre lugares
imprevistos. Nesse verdadeiro ato antropofágico, incorpora duas construções
existentes e abandonadas: o Cine Cairo e o antigo Conservatório Dramático
Musical de São Paulo. De fato, efetua um verdadeiro atravessamento da quadra,
quebrando as barreiras físicas e ideológicas da propriedade privada. O eixo
dominante é o que corre no sentido do Vale do Anhangabaú-Rua Conselheiro
Crispiniano, por onde o espaço escoa sem impedimentos no nível térreo. Do mesmo
modo, essa abertura ocorre no acesso da Avenida São João, no qual o volume
suspenso libera totalmente o acesso, constituindo-se assim numa verdadeira
praça coberta.
Vista da Avenida São João com a fachada do Com-
servatório.e na sequencia o edifício Seguradoras, de
Oscar Niemeyer
Praça coberta com vista para o vale do Anhangabaú
Os blocos
programáticos são distribuídos ao longo desses 3 eixos, voltando-se para a rua
Formosa e para a Avenida São João. Na intersecção localiza-se a torre administrativa
e de apoio, ponto de referência junto com o pavilhão das escolas e restaurante,
dos quais partem os “tentáculos” programáticos e volumétricos do edifício dos
corpos artísticos, do centro de documentação e das salas de ensaio. Ligações
diretas são efetuadas por tuneis passarelas: a que liga o restaurante ao aos
corpos artísticos, o que conecta a torre ao pavilhão e o que segue rumo à Rua
Conselheiro Crispiniano (que é um túnel-pavimento para ensaios). Esses três
elementos são espécies de vetores direcionais do atravessamento do espaço.

Vista da Rua Conselheiro Crispiniano
A Praça das
Artes, em um primeiro momento, afirma um modo de ser que contraria as
construções existentes com sua disposição intrusa, quase parasitária pelos
interstícios do quarteirão. O padrão do edifício isolado com volumetria
unitária e monolítica típicos do modernismo ou o padrão eclético com base,
corpo e coroamento dispostos a partir de eixos de simetria (complementado pelas
colunas e ornatos) parecem avançados no tempo em relação ao primitivismo do
conjunto da Praça das Artes.
Por isso, a meu
ver a opção de atribuir ao célebre concreto aparente brutalista, ao invés da
secção rija e dura, a consistência mole da “taipa”, com a marca dos pranchões
de madeira. Daí, a necessidade de passar a impressão de um plano não
subdividido em pavimentos, algo que normalmente ocorre pela marcação rítmica
dada por lajes, parapeitos e fenestração, reveladores do “empilhamento” de
camadas horizontais de espaço. Na Praça das Artes, a sensação deveria ser de um
muro único, como os das igrejas coloniais. Daí o misto de aparência musgosa e
terrosa, o cinza do concreto aparente o ocre da argila. Assim, vão regulares
surgem nos planos de fechamento, de fato como pequenas perfurações num todo
cheio e consistente a partir de uma rítmica aleatória.
A forma
contrastante com que a Praça das Artes se mostra se deve a sua aparência
arcaica, tanto em relação aos palacetes ecléticos do início do século como
antigo Cine Cairo e o antigo Conservatório Dramático Musical, quanto dos
ilustres vizinhos modernistas: o edifício CBI Esplanada na rua Formosa, projeto
de Lucjan Korngold, o edifício Seguradoras, na Av. São João, de Oscar Niemeyer. As fachadas antigas foram
não apenas restauradas, mas purificadas pela pintura branca, o que radicaliza a
sua contraposição com o concreto aparente dos blocos ao redor, resultando em
puros planos ecléticos. Mais exatamente um écran
superficial. Já a diferença com as
torres modernistas se revela no contraste entre valores opostos: transparência
e opacidade.
A presença
marcante da Praça das Artes se dá de um modo paradoxal: é uma forma sem forma,
uma arquitetura anterior a era da arquitetura, uma materialidade pretérita,
primitivista mesmo. Curiosamente essa condição pré-construtiva é o que faculta
o inesperado entendimento com a condição desgastada, deteriorada mesmo das
banais edificações limítrofes. E aí sua lógica de ocupação e tratamento de
superfície se demonstrar inclusiva e adaptativa ao incorporar as incongruências
do lugar, não rompendo, portanto, com o contexto no qual se insere. Nesse
sentido, o projeto se mostra menos projeto de edificação do que projeto de
paisagem.
Não há como não
atentar para esse lado expressivo do projeto, o estranhamento pela introdução
de tais elementos incongruentes num meio de densa urbanização. Não há como não
se remeter, quase num exercício surreal de rememoração de um tempo perdido, das
primeiras ocupações da modesta vila de São Paulo da Piratininga a partir do
triângulo religioso (Sé, São Bento e São Francisco) original e a expansão pelo
eixo da Avenida São João atravessando o vale do Anhangabaú, com seu terreno
alagadiço e com suas chácaras e plantações, com os primeiros calçamentos de
terra batida e pedra e construções coloniais de paredes caiadas e grandes
beirais. Não há como não atentar para as condições rústicas da primeira
urbanização quando a construção e a paisagem bruta ainda se encaravam de igual.
Esse jogo
inesperado do moderno e do arcaico, essa simultaneidade de temporalidades
distintas, deve muito à poética de Lina Bo Bardi, cujo estranhamento era
estratégia assumida para iluminar e abrir perspectivas inéditas. Esse
procedimento estético não é estranho a alguém como Marcelo Ferraz, um dos
autores do projeto, que trabalhou durante muitos anos com a arquiteta. Há todo
um conjunto de projetos do escritório Brasil Arquitetura em que se percebe o
transito entre o atual e o vernacular, ou mesmo a tradição construtiva popular,
em especial casos de requalificação de estruturas existente. No entanto, sempre
no limite de certo ecletismo construtivo. O que surpreende na Praça das Artes é
o rigor e a radicalidade do projeto, o que me parece lhe confere certa
vitalidade contemporânea.
Nesse ponto, o
tema é inevitável: a questão da herança e da influência. Como o herdeiro assume,
recolhe e propaga um legado? Como não se tornar subserviente, verdadeiramente
sufocado pela força intimidadora da obra anterior a que se pretende ser fiel?
Tais são os
dilemas da “Angustia da Influência”, célebre livro de Harold Bloom que trata da
influência poética e do diálogo verdadeiramente bélico entre poetas, quando um
poeta posterior distorce a leitura do poeta precursor, efetuando aquilo que o
autor chama uma “má leitura” do texto original. Ou seja, efetuando um salto
criativo que faz com que a influência deixe de ser simplesmente “uma
transferência de personalidades” para se tornar um “poeta forte” com
personalidade própria. Bloom esboça alguns “movimentos revisionários” de como o
poeta se desvia da influência de outro.
-
Desvio corretivo, quando é preciso encontrar na obra anterior um defeito que
não está nela e daí corrigí-la;
-
Completude por antítese, quando o poeta posterior isola um fragmento da obra
anterior, retendo-o a seu favor para leva-la para outro caminho, como se o
precursor não tivesse ido longe o bastante;
-
Descontinuidade, quando opera o esvaziamento do antecessor, que é claro é
sempre relativo;
-
Despersonalização generalizante, quando atribui à obra fundadora o caráter de
representação de certo estado geral, relativizando portanto o valor unitário do
autor original;
-
Retorno, quando já no final de sua carreira o poeta que vem depois se mostra de
novo aberto à obra do precursor de tal modo que pareceria que o poema do
precursor teria sido escrito pelo da posteridade.
Estas categorias
evidentemente não esgotam as possibilidades de debate poético entre obras e
artistas, mas servem de começo para se avaliar a fundo as possibilidades de
“desleituras criticas” produtivas.






















